K prodeji
8 890 000 Kč
- Pokoje: 3
- Koupelny: 1
- Obytná plocha: 67 m²
- Rok výstavby: 2007
- Typ: 3+kk
- Stavba: Zděná
- Stav objektu: Velmi dobrý
- Vybavení: ano
Popis
Hledáte rodinný a moderní byt ve vyhledávané lokalitě Třebeš? Ideálně byt s terasou nebo předzahrádkou? Pokud ano, tak tato nabídka prodeje bytu 3+kk o velikosti 67 m2 v ulici Labská louka v Hradci Králové bude právě pro Vás.
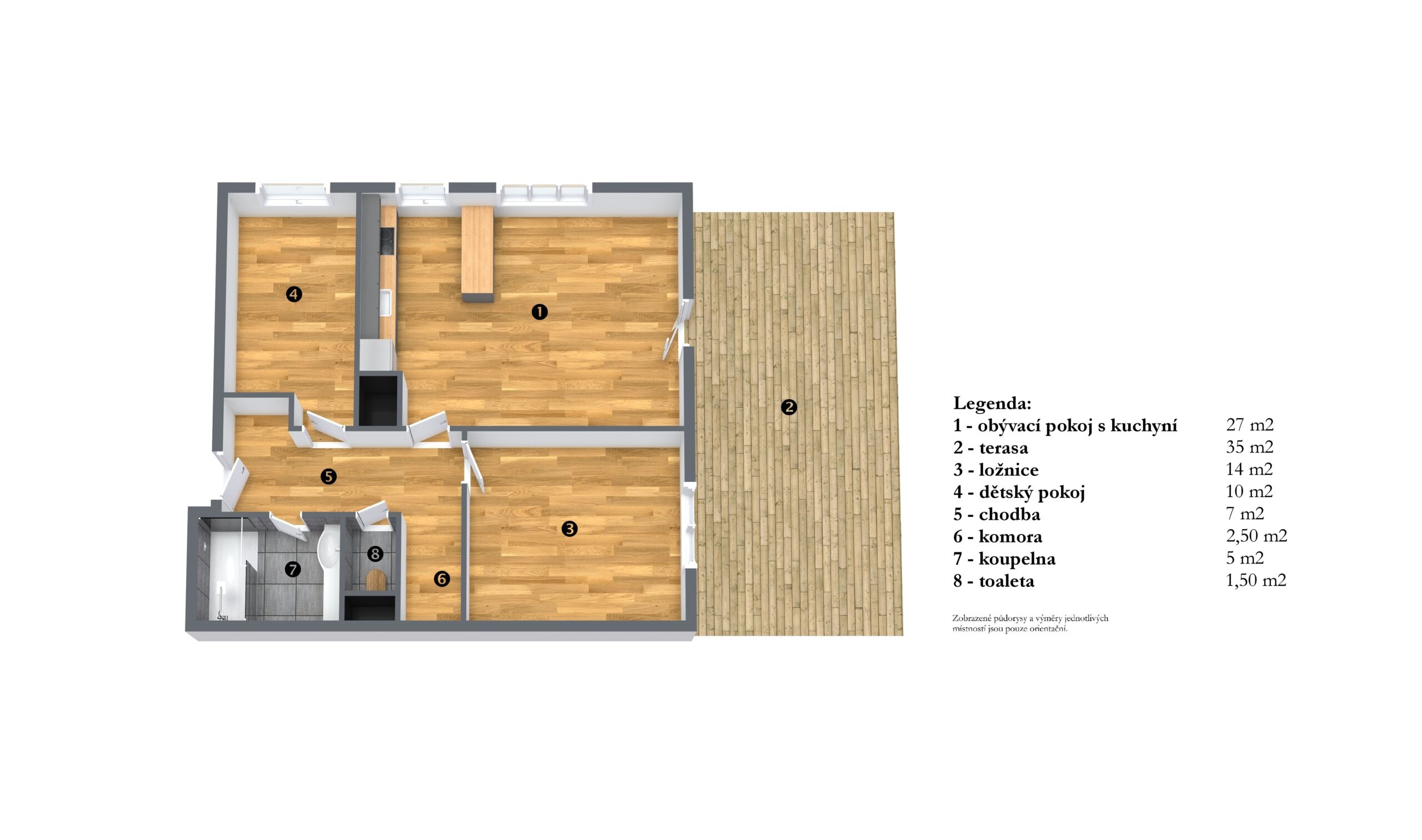
Jedná se o zděný byt s terasou o velikosti 35 m2 umístěný v 1.NP bytového domu. Byt je kompletně vybaven nábytkem a ložnice je vyrobena na zakázku přímo od truhláře. Součástí bytu je nika pro praktickou komoru o velikosti 2 m2. Velkou výhodou bytu je jeho terasa, která nabízí mnoho možností využití. Součástí oken jsou venkovní elektrické žaluzie. Bytový dům byl kolaudovaný v roce 2007 a nachází se v dobrém a udržovaném stavu. Fond oprav je ve výši 1413,- měsíčně.
Dispozice: vstupní chodba, komora, obývací pokoj s kuchyní a vstupem na terasu, ložnice, dětský pokoj, koupelna se sprchovým koutem a samostatné WC.
Přípojky: obecní kanalizace, obecní vodovod, elektřina 220/380V, vytápění ústřední dálkové.
Lokalita Třebeš nabízí příjemné a hezké bydlení a splňuje požadavky i těch nejnáročnějších majitelů. Výhodou je i blízkost přírody a mnoho možností využití jak pro odpočinek, tak i aktivní sportovní vyžití. Občanská vybavenost je samozřejmostí.
Budeme se těšit na Váš zájem a věříme, že si byt najde brzy nové a slušné majitele. Tento byt Vám velice doporučuji a rád Vás přivítám na prohlídce. Budu se těšit na zavolání.
S pozdravem Milan Polívka Certifikovaný makléř číslo OsR 19./I./2018
Mapa
Vybavení
- el. 230V
- obecní kanalizace
- obecní vodovod
- vytápění dálkové
- veškerá občanská vybavenost
Video
Žádost o prohlídku
- :














