K prodeji
8 400 000 Kč
- Pokoje: 2
- Koupelny: 1
- Patra: 2
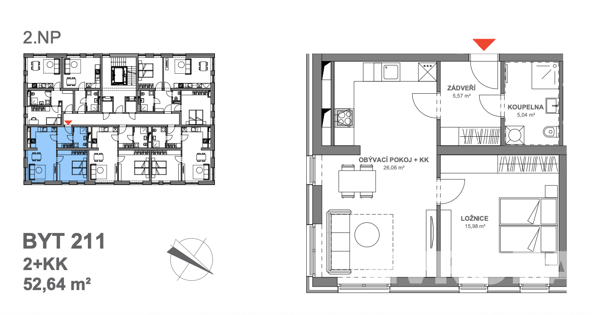
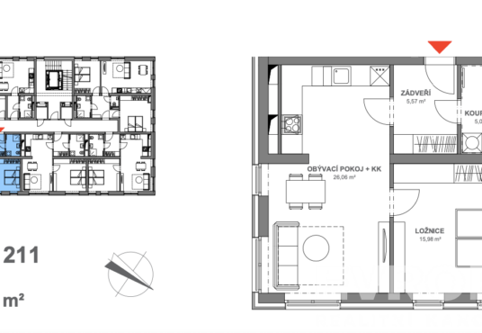
- Obytná plocha: 53 m²
- Rok výstavby: 2022
- Typ: 2+kk
- Stavba: Skeletová
- Stav objektu: Novostavba
- Vybavení: ano
Popis
Chtěli byste vlastnit apartmán v Peci pod Sněžkou? Mít tak pohodlí a komfort kdykoli pojedete na hory? Líbí se Vám moderní design? Pokud ano, tak přesně pro Vás nabízíme možnost koupě apartmánu 2+kk o velikosti 53 m2 v Rezidenci Vlčice v Peci pod Sněžkou – části Velká Úpa.
Jedná se o rezidenční novostavbu s kolaudací 6/2022. Apartmán, který se nachází ve 2.NP s výhledem na potok Úpa je kompletně vybaven kvalitním a moderním nábytkem pro Váš komfort. Velká francouzská okna dotváří světlost a vzdušnost celého interiéru. K apartmánu náleží jedno soukromé parkovací stání.
Dispozice: vstupní chodba, obývací pokoj s kuchyní, ložnice a koupelna s WC a sprchovým koutem. K bytu náleží v přízemí bytového domu zamykatelný sklep s háky na kola a vysoušeč bot. Velkou výhodou je také samostatná komora 3 m2 přímo na patře.
Přípojky: obecní vodovod, obecní kanalizace, elektřina 220/380V, plynové ústřední topení na vytápění a ohřev vody.
Fond oprav je aktuálně 1332,-Kč/měsíčně.
Rezidence Vlčice se nachází na okraji Pece pod Sněžkou a nabízí jak soukromí, tak i skvělou dostupnost do centra.
Pec pod Sněžkou patří mezi nejlepší horské destinace v České republice. A vy máte tak možnost navštěvovat svůj apartmán kdykoli v celém ročním období.
Budeme se těšit na Váš zájem a věříme, že si apartmán najde brzy nového majitele. Budu se těšit na zavolání.
S pozdravem Milan Polívka. Certifikovaný realitní makléř číslo OsR 19./I./2018 Asociace realitních kanceláří České republiky.
Mapa
Vybavení
- elektrika 220/380V
- obecní kanalizace
- obecní vodovod
- plynové ústřední topení na vytápění a ohřev vody
- veškerá občanská vybavenost
Žádost o prohlídku
- :


















