K prodeji
7 490 000 Kč
- Pokoje: 5
- Koupelny: 2
- Obytná plocha: 143 m²
- Typ: 5+kk
- Stavba: Zděná
- Stav objektu: Velmi dobrý
Popis
Hledáte prostorný rodinný dům? Příjemné soukromí s velkým pozemkem? Pokud ano, tak tato nabídka prodeje rodinného domu 5+kk o velikosti 143 m2 s celkovým pozemkem 3157 m2 v obci Slatina nad Úpou je právě pro Vás.
Jedná se o zděný rodinný dům. Dokončení rozsáhlé rekonstrukce a kolaudace bylo provedeno v roce 2017 (2016). Při této rekonstrukci byly zachovány téměř jen obvodové stěny a nosné příčky. Ostatní je nové nebo dozděné . Lze tedy uvádět, že se jedná o dům po rozsáhlé rekonstrukci. Dům je ve velmi dobrém stavu běžného opotřebení. Je zde zachovalá kuchyňská linka vč. vestavných spotřebičů a dále v některých pokojích i vestavěné skříně. Převážně se jedná o nezařízené místnosti. Je tedy možné si interiér doladit celkově dle Vašich představ a požadavků. Výhodou jsou i vedlejší místnosti jako šatny/komory pro úložný prostor v podkroví.
V celém domě jsou dřevěná eurookna s dvojskly, podlahy vinylové a dlažba. Dále podlahové vytápění a v ložnici a chodbách je navíc i radiátor. Dům je zateplen 12 cm polystyrenem.
Přípojky: vodovod obecní, nepoužívaná studna, odpad do ČOV, elektřina 220/380V, tepelné čerpadlo pro vytápění a ohřev teplé vody. Technická místnost je v suterénu.
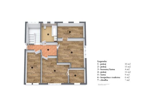
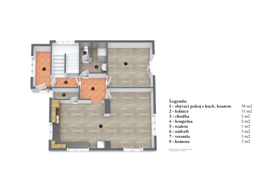
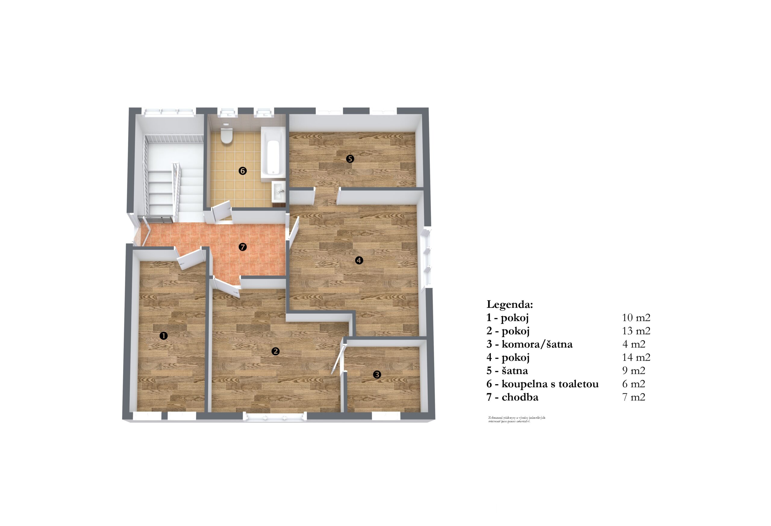
Dispozice:
Přízemí: vstupní veranda, zádveří, chodba, obývací pokoj s kuchyní, špajz, ložnice, koupelna a samostatné WC. Dále přechodně zadělané schodiště do suterénu.
Podkroví: schodiště, chodba, 2 pokoje se šatnami, pokoj, koupelna s WC.
Velkou výhodou může být i prostorný suterén o velikosti cca 75 m2. Součástí rodinného domu je prostorný suterén v započaté rekonstrukci s možností vybudování prostorů pro podnikání či jiné aktivity. V prostorách je zavedeno vytápění (radiátory), rozvody vody, odpadů a také elektroinstalace. Prostory jsou naprosto suché.
Poloha pozemku a rodinného domu je v horní části obce až dá se říci s dominantním umístěním. Jsou odtud krásné výhledy do obce i okolí. Pozemek je rovinatý jen místy mírně svažitý či kaskádovitý. Nabízí jak soukromí, tak široké využití pro realizaci okrasné zahrady či malého sportovního vyžití. Na pozemku je nová dřevěná pergola s betonovými základy. Celkově je pozemek oplocený a vjezdová brána je připravena k realizaci. Je zde i přívod el. energie.
Obec Slatina nad Úpou nabízí základní občanskou vybavenost. Vše ostatní najdete v nejbližších městech.
Těšíme se na Váš zájem a věřme, že si dům brzy najde nového majitele. Tento dům Vám velice doporučuji a rád Vás přivítám na prohlídce nemovitosti. Budu se těšit na prohlídky.
S pozdravem Milan Polívka.
Certifikovaný realitní makléř číslo OsR 19./I./2018 Asociace realitních kanceláří České republiky.
Mapa
Vybavení
- elektrika 220/380V
- obecní vodovod
- odpad do ČOV
- ohřev vody - tepelné čerpadlo
- Vytápění: tepelné čerpadlo
- základní občanská vybavenost
Video
Žádost o prohlídku
- :




























